The Emily
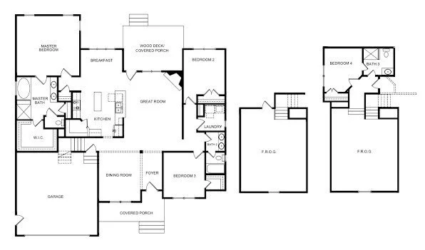
The Emily model offers a functional open-concept floor plan with approximately 2,620 square feet of living space. This home features 4 bedrooms and 3 full bathrooms, including a spacious primary suite with en-suite bath and walk-in closet. The kitchen includes granite countertops, soft-close cabinetry, and a large island that opens to the main living and dining areas. A finished room over the garage (FROG) provides flexible space suitable for an office, media room, or additional living area. Additional features may include a two-car attached garage, covered porch, and customizable interior selections depending on build stage. Built by RMB Homes. Contact listing agent for details on available options and specifications.

